Refine Search

Tbd Fosler - Lot 1 Road, Plattekill, NY 12568

$199,999
  • Tbd Fosler - Lot 1 Road, Plattekill, NY 12568 Main Photo

1 Total Photos [Click to View All]

Pending
LOT SIZE 18.800 acres MLS#951945
STATUSPending PROPERTY TYPELand - Lot/Land SCHOOLWallkill

Property Description

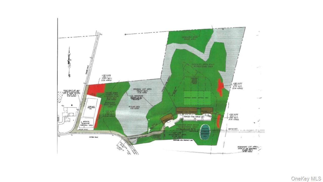
BUILDERS, DEVELOPERS, AND INVESTORS - TAKE NOTICE.This 18.8 acre property offers a rare opportunity with significant groundwork already completed. The current owner previously secured permits and approved plans for a 15-Unit Townhouse development. Although the permits have since expired, the approved plans will be included with the sale. Substantial improvements have already been made, including two drilled wells and a constructed roadway, reducing both time and upfront development costs for the next owner. An adjacent parcel (MLS #952390) totaling 25.800 acres is also available for purchase, creating the potential for an expanded project or complementary development. This parcel features approximately 512 feet of road frontage and is zoned RR1.5, offering flexibility for residential development consistent with local zoning regulations.

Tbd Fosler - Lot 1 Road | MLS# 951945

This land located at Tbd Fosler - Lot 1 Road, Plattekill, NY 12568 is currently listed for sale with an asking price of $199,999. The property has approximately 18.80 Acres. Tbd Fosler - Lot 1 Road is located within the Wallkill school district. Search Plattekill real estate on www.richiekrugjr.com today.

Property Features

Property Type: Land - Lot/Land
Lot Size: 18.80 Acres
Taxes: $5,411

Feature Descriptions

Current Use: Vacant
Days on Site: 42
On Market Date: 2026-01-20
Parcel Number: 4200-102.001-0007-011.121-0000
Rental Term: Monthly
Sewer: None

Local Schools

High School: Wallkill Senior High School
Middle School: John G Borden Middle School
Elementary School: Plattekill Elementary School
School District: Wallkill

Estimate Your Payment

Estimated Payment

$ 1,520.56 per month $1,011.31 Principal & Interest $450.92 Property Tax $58.33 Homeowner's Insurance

Change Payment Information

%
years/fixed
yearly
yearly (est.)
(Payments are an estimate and may vary by lender)

Local Information

Listed By / Shown By

Listing By

Agency Name: Coldwell Banker Realty
Agency Contact: 845-634-0400

agent picture

Shown By

Agent Name: Richie Krug Jr.
Agent Phone: (516) 673-8775
Agency Title: Coldwell Banker American Homes

IDX logo

Login to My Homefinder

Pixel